CAPACITY : 100-3000t/h
MAX FEEDING SIZE : 25-80mm
APPLICATION : Mining, metallurgy, construction, highway, railroad, and water conservancy, etc.
RAW MATERIALS :granite, basalt, river stone, limestone, gold ore, iron ore, copper ore, etc

Basalt

Pebbles

Granite

Andesite
60s online
customer service
2 days customize
solutions
Factory
visiting anytime
1-10 days dispatch
the goods
One week
of installation
2 days of
training
365 days
after-sales online
Project tracking
regularly
2 days provide
maintenance plan
Tip1: The specific time arrangement depends on the actual situation. Tip2: Free airport transfer and hotel accommodation.
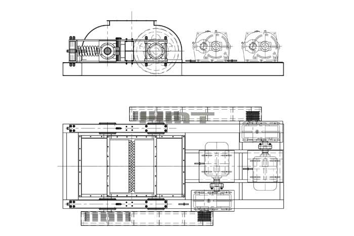
2PG(Y) double roll crusher, also known as the roll crusher, is divided into two types from the structure type: 2PG smooth roll crusher and 2PGC toothed roll crusher. From the safety adjustment mode, it is divided into 2PG spring type and 2PGY hydraulic type. Hydraulic type is mainly used in 2PGY900×900 models.
Suitable for crushing and fine crushing of solid materials with compressive strength less than 300Mpa and moisture less than 35%. Such as broken river pebbles, pebbles, iron ore, quartz stone, potassium feldspar, albite, limestone, metal silicon, barite, basalt, granite, steel slag, cement clinker, construction waste (concrete), shale, quicklime, coal, coke, clay, bentonite, chemical raw materials, etc.
Among them, the smooth roll crusher is suitable for fine crushing sand making operation, and the toothed roll crusher is suitable for coarse crushing operation of materials with high humidity and viscosity.


1. Simple structure and low maintenance cost
2. Reduce production costs
3. Uniform particle size, low energy consumption, low noise and other advantages.
| Model | Roll Diameter | Roll Width | Size of Feed Opening | Guard Mode | Drive Mode | Capacity | Motor Power |
| (mm) | (mm) | (mm) | (t/h) | (kw) | |||
| 2PG400×250 | φ400 | 250 | ≤25 | Spring | V Belt | 2-10 | 2×5.5 |
| 2PG610×400 | φ610 | 400 | ≤30 | 5-20 | 2×15 | ||
| 2PG750×500 | φ750 | 500 | ≤30 | 10-30 | 2×18.5 | ||
| 2PG(Y)800×600 | φ800 | 600 | ≤40 | Spring or Hydraulic | V belt or Shaft Coupling | 12-40 | 2×22 |
| 2PG(Y)800×800 | φ800 | 800 | ≤40 | 20-50 | 2×30 | ||
| 2PGY900×900 | φ900 | 900 | ≤40 | Hydraulic | Shaft Coupling | 40-60 | 2×37 |
| 2PGY1000×800 | φ1000 | 800 | ≤40 | 45-80 | 2×45 | ||
| 2PGY1200×900 | φ1200 | 900 | ≤40 | 50-100 | 2×55 | ||
| 2PGY1200×1000 | φ1200 | 1000 | ≤40 | 50-120 | 2×75 | ||
| 2PGY1200×1200 | φ1200 | 1200 | ≤50 | 80-150 | 2×90 | ||
| 2PGY1500×1000 | φ1500 | 1000 | ≤80 | 120-180 | 2×110 |
Note:
The above processing capacity will be changed according to the nature of the material, the feeding method.
Please fill in your requirements for more information and quotation.